Casa de Sueños
Tucked into the hillside with panoramic ocean views, Casa de Sueños is more than a luxury residence - it’s a high-value investment property designed to offer a level of privacy, beauty, and design innovation unseen in Costa Rica. This project is a bold response to both natural challenges and untapped potential, crafted from the ground up to redefine high-end living in the region.
Site Optimization
Custom Design, Build & PM
Permitting & Compliance
Interior & Exterior Finishing
Landscaping & Pool
Project Scope
Background and challenge
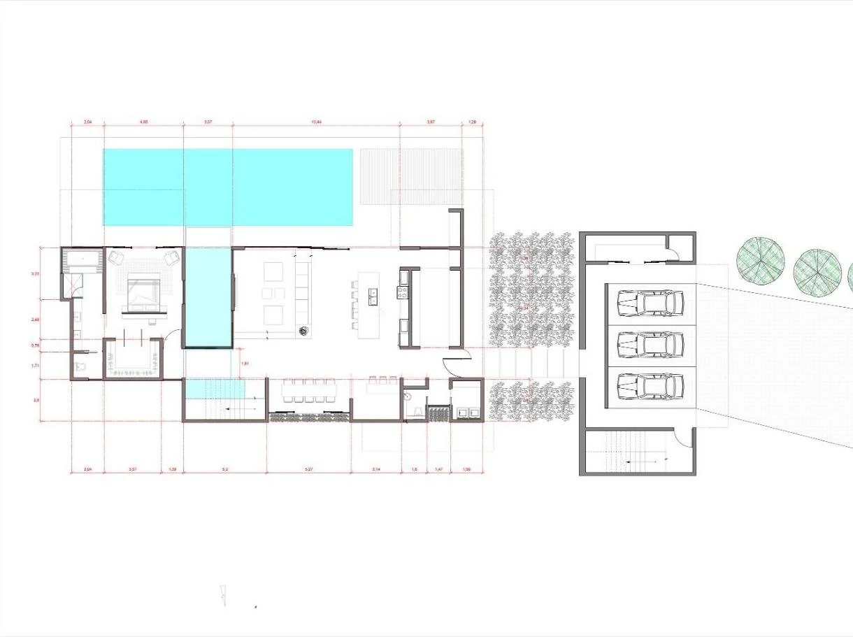
This project began as a high-end build intended for sale. After the successful completion of his own home, a previous client of Pourya’s received overwhelming interest from buyers—despite his residence never being listed. Inspired by that demand, he partnered with Pourya once again to create a property that would be uniquely designed, meticulously built, and ready to hit the market. The chosen lot, perched on the edge of a mountain with expansive ocean views, offered both potential and complexity. Engineering a million-dollar retention wall into the steep slope laid the groundwork for what became an ambitious vision: a floating architectural experience that blends privacy, luxury, and functional elegance.
Floating architecture
Glass-bottom infinity pool
Unique water features
Design process
The home was carefully designed to deliver privacy, utility, and a striking sensory experience from the moment of arrival. The entrance leads through a sleek, elevated garage and a curated courtyard that offers a moment of pause before revealing the interior. Each bedroom features its own private office with incredible views, while the centerpiece—a cantilevered infinity pool with a glass bottom—creates the illusion of floating above the mountain’s edge. Every element was considered for future market appeal, durability, and visual harmony.
“Working with Pourya on Casa de Sueños has been exceptional. Even in these early stages, his vision for the property is clear—creating something completely unique in Hermosa with unmatched privacy, striking design, and a one-of-a-kind glass-bottom infinity pool. Pourya has guided the project from lot acquisition through design, ensuring every detail maximizes the property’s potential for high-end buyers. I’m confident this will be a standout investment property with incredible appeal once completed.”
Result and impact
Casa de Sueños is expected to set a new benchmark for private luxury homes in Guanacaste and Costa Rica - both as a unique residential experience and a highly marketable asset. From land acquisition to full execution, Purycci’s integrated approach is delivering a lifestyle and a legacy built into one home.
Expected date of completion: 2026
